Beschrijving
Sfeervolle twee-onder-een-kapwoning met stadstuin in hartje Enkhuizen. Ben je op zoek naar een woning met karakter waar je helemaal je eigen draai aan kunt geven? Welkom aan de Vissersdijk 32 – een charmante twee-onder-een-kapwoning op een fijne locatie in het historische centrum van Enkhuizen.
Deze sfeervolle woning biedt volop mogelijkheden om te moderniseren en naar eigen wens te verbouwen. Met een lichte woonkamer, drie slaapkamers en een gezellige stadstuin is dit een kans die je niet wilt missen!
Ben jij handig en zoek je een woning waar je jouw eigen woonideeën kunt realiseren? Dan is de Vissersdijk 32 precies wat je zoekt! Neem contact op met In Huis Makelaardij en plan een bezichtiging – wij leiden je graag persoonlijk rond.
Een eerste rondleiding door je nieuwe (t)huis
Indeling van de woning
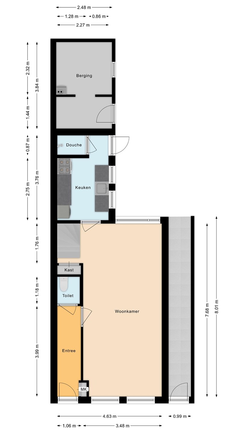
Begane grond
Via de entree stap je binnen in de hal met toilet en toegang tot de woonkamer. De ruime, lichte woonkamer heeft grote ramen aan de voor- en achterzijde, waardoor het daglicht mooi binnenvalt en de ruimte een prettige sfeer ademt. Vanuit de woonkamer heb je een mooi uitzicht op de Zuidertoren en is de eerste verdieping bereikbaar.
De keuken bevindt zich aan de achterzijde en is eenvoudig, maar netjes uitgevoerd. Hier vind je tevens de douchegelegenheid – praktisch en functioneel ingericht. Vanuit de keuken heb je toegang tot de tuin.
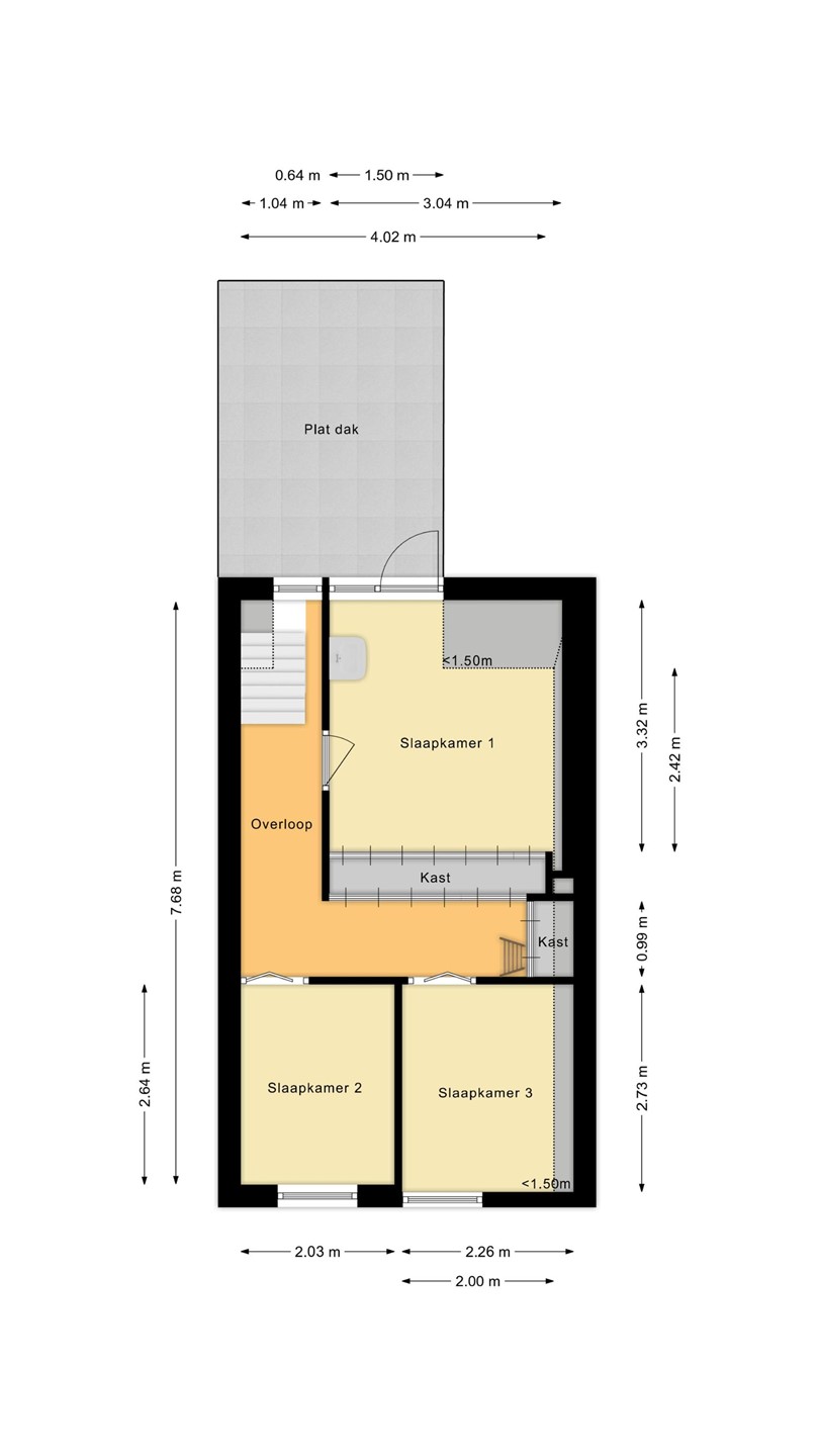
Eerste verdieping
Overloop met veel kastruimte en toegang tot drie slaapkamers, waarvan twee aan de voorzijde met tevens met uitzicht op de Zuidertoren en één aan de achterzijde. De kamers bieden een fijne basis om te moderniseren en comfortabel in te delen. De slaapkamer aan de achterzijde is voorzien van een wastafel en heeft een deur naar het platte dak.
Zolder
Via een losse trap is de bergzolder bereikbaar – een ideale plek voor extra opslag.
Buitenleven
De stadstuin aan de achterzijde is een gezellige en beschutte plek waar je fijn kunt genieten. De tuin beschikt over een houten berging en een overdekte steeg met poort naar de straat.
Ligging en omgeving
De woning ligt aan de Vissersdijk, een doorgaande straat in het karakteristieke centrum van Enkhuizen. Alle voorzieningen zijn op loopafstand gesitueerd: winkels, horeca, scholen en het station liggen letterlijk om de hoek. Ook de haven, het Wilhelminaplantsoen, het IJsselmeer en diverse wandelroutes zijn binnen enkele minuten bereikbaar.