Beschrijving

In de geliefde Bomenbuurt staat deze sfeervolle tussenwoning met verrassend veel ruimte en een fijne tuin. 
De woning heeft een woonkamer met erker, maar liefst 4 slaapkamers, een handige bijkeuken en ligt in een kindvriendelijke buurt op loopafstand van winkelcentrum Streekhof en het station. 

Een woning met ruimte, licht en een fijne ligging klaar voor een nieuw hoofdstuk.
Nieuwsgierig? Plan snel een bezichtiging bij In Huis Makelaardij!

De indeling van je nieuwe (t)huis:

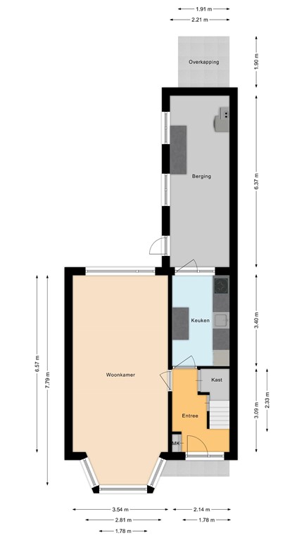
Begane grond
Via de hal met meterkast en toilet kom je in de keuken en woonkamer. De erker en de grote ramen aan de voor- en achterzijde zorgen hier voor veel daglicht en een prettig gevoel van ruimte echt een fijne plek om samen te zijn. De keuken ligt naast de woonkamer en is van alle gemakken voorzien. Er is veel kast- en werkruimte en diverse inbouwapparatuur, waaronder een koelkast, combi-oven, vaatwasser, keramische kookplaat en een afzuigkap. Aansluitend vind je de bijkeuken/berging met deur naar de tuin, ideaal voor extra opslag, een wasmachineopstelling en fietsen een echte bonusruimte met veel mogelijkheden. Ook hangt hier de cv-installatie.

Eerste verdieping
Op de eerste verdieping bevinden zich de overloop, drie slaapkamers en de badkamer. De kamers zijn licht, goed in te delen en bieden voldoende ruimte voor slapen, werken of studeren. De badkamer is compact maar efficiënt ingericht, met douche en wastafelmeubel.

Tweede verdieping
De vaste trap leidt naar de tweede verdieping met een voorzolder en een vierde slaapkamer. Deze verdieping biedt extra leefruimte bijvoorbeeld als logeer- of werkkamer. Dankzij de dakisolatie en het dakraam is het hier aangenaam licht en comfortabel.

Tuin
De achtertuin op het noorden is verrassend diep en verzorgd ingericht met terrassen en groene perken. Er is voldoende plek om te genieten van het buitenleven, te tuinieren of gezellig te borrelen in de zon. Achterin de tuin staat een overkapping, perfect voor fietsen of extra opslag buiten. De tuin is bovendien bereikbaar via een achterom.

Ligging en omgeving
De woning ligt in een geliefde, kindvriendelijke woonwijk met veel groen en speelgelegenheden. Op loopafstand vind je winkelcentrum Streekhof, diverse scholen en het treinstation. Ook sportvoorzieningen, horeca en het park liggen in de buurt. De bereikbaarheid is uitstekend: binnen enkele minuten rijd je op de uitvalswegen richting Hoorn, Enkhuizen of de A7.

Kenmerken